Wyjątkowe 2 pokoje Nad Odrą – komfort i lokalizacja
Szczecin, Zachodniopomorskie
Opis
Kup mieszkanie 2- pokojowe z balkonem, przy Odrze i zacznij zarabiać na wynajmie od razu po zakupie!
W ofercie użyte zdjęcia przedstawiają przykładowe wykończenie. Sprzedajemy mieszkania w standardzie deweloperskim, gotowe do dalszych prac wykończeniowych.
Zapraszamy do umówienia się na prezentację na terenie budowy! Zadzwoń 91*817*21*72
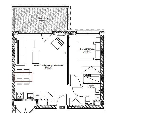
Mieszkanie o powierzchni 42,61 m2, usytuowane na 3. piętrze w nowoczesnym budynku z windą - inwestycja Nad Odrą przy ulicy Celnej.
W skład powierzchni mieszkania wchodzi:
- salon z wyjściem na balkon,
- kuchnia,
- sypialnia,
- korytarz,
- łazienka
W ofercie mamy również mieszkania o takim samym metrażu na niższych kondygnacjach.
Biuro sprzedaży 91*817*21*72
Ogólne informacje
| Rodzaj | Na sprzedaż |
|---|---|
| Powierzchnia użytkowa | 42.61 m² |
| Piętro | 3 |
| Liczba pokoi | 2 |




