⭐️ Żoliborska perełka - powojenna kamienica ⭐️
Warszawa, Mazowieckie
Opis
Zapraszamy do zapoznania się z unikatową ofertą 3-pokojowego mieszkania usytuowanego na ostatnim piętrze urokliwej kamienicy z 1955 roku na Żoliborzu.
★ MIESZKANIE ★
To mieszkanie pełne charakteru i niepowtarzalnego uroku, które może być doskonałym miejscem do stworzenia przytulnej przestrzeni do życia lub pracy. Duże okna zapewniają dopływ naturalnego światła, co sprawia, że wnętrze jest jasne i przyjemne. Każdy z pokoi można zaaranżować według własnych potrzeb i preferencji.
Położenie na ostatnim piętrze gwarantuje nie tylko ciszę i spokój, ale także niezwykły widok na okolicę. To idealne miejsce do obserwowania panoramy miasta i cieszenia się urokami Żoliborza.
Do mieszkania przynależy piwnica o powierzchni 3,5 m2. Właściciele mają także dostęp do pomieszczenia gospodarczego (strychu) na tym samym piętrze, które jest współdzielone z sąsiadem. Na parterze znajduje się także ogólnodostępna wózkarnia/rowerownia.
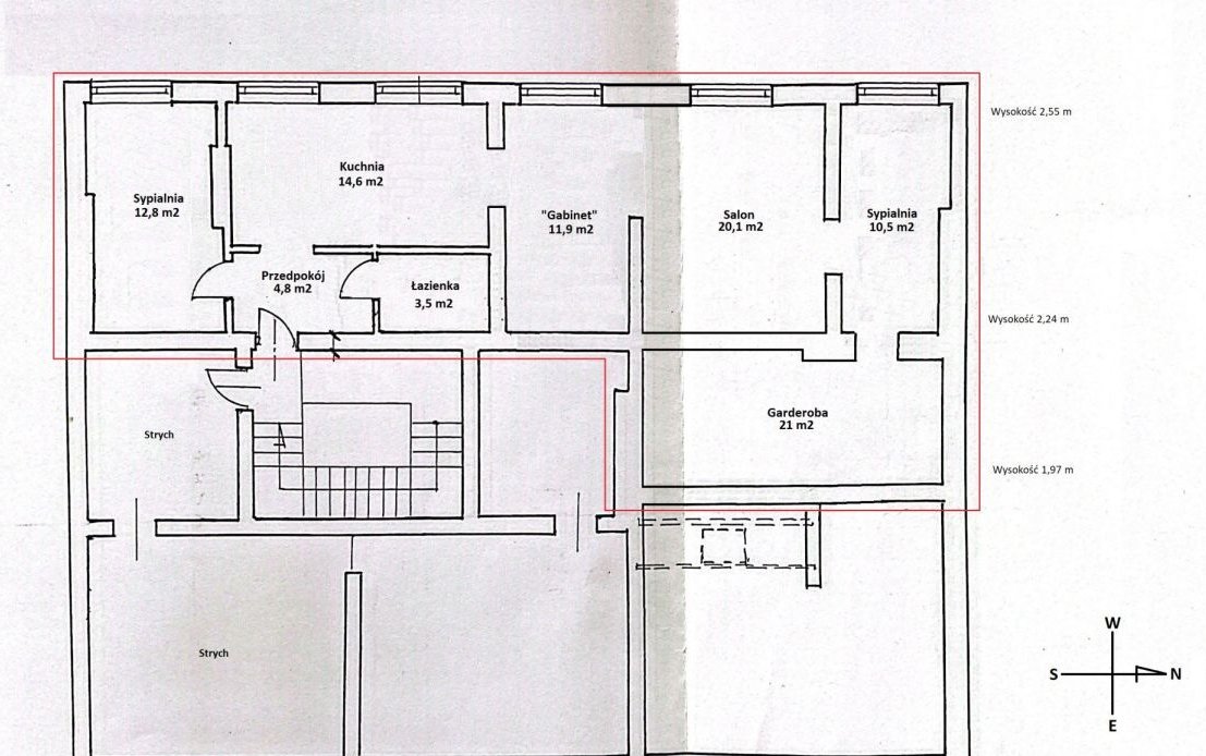
Powierzchnia po podłodze: 99 m2
Powierzchnia z KW: 87,5 m2
Różnica wynika ze sposobu liczenia metrażu z uwagi na wysokość pomieszczeń (lekki skos w garderobie).
★ BUDYNEK ★
Kamienica pochodzi z okresu powojennego i jest objęta nadzorem konserwatora zabytków. Została ukończona w 1955 r.
★ DODATKOWE ATUTY ★
Aktualnie trwają prace dot. instalacji windy.
Dzięki lokalizacji mieszkania na ostatnim piętrze możliwe jest także zaadaptowanie dachu budynku na taras do wyłącznego użytku (dysponujemy planem do wglądu).
Możliwe jest także powiększenie mieszkania o dodatkowe ~40 m2 poprzez wykupienie pomieszczenia sąsiadującego z garderobą oraz dodatkowe ~50 m2 obok sypialni po prawej stronie mieszkania. Kilka lat temu podjęto pierwsze kroki w tym celu, za zgodą wspólnoty. Działania zostały jednak zaniechane w związku ze zmianą planów obecnych właścicieli.
★ LOKALIZACJA ★
Bliskość terenów zielonych - Sady Żoliborskie i Stefa Żeromskiego. Idealne miejsce na chwilę relaksu, wyciszenia, bądź spacery z rodziną lub czworonogiem.
Lokalizacja mieszkania jest niezwykle atrakcyjna - w samym sercu Żoliborza, w bliskiej odległości od kawiarni, restauracji oraz licznych punktów usługowych. Od CH Westfield Arkadia dzieli nas kilka minut autem.
Okolica jest doskonale skomunikowana z resztą Warszawy dzięki przystankom autobusowym, liniom tramwajowym oraz stacji 1 linii metra Plac Wilsona. Osoby zmotoryzowane z pewnością docenią bliskość trasy S7 oraz Wisłostrady, która umożliwia sprawne przemieszczanie się po Warszawie.
Ogólne informacje
| Rodzaj | Na sprzedaż |
|---|---|
| Powierzchnia użytkowa | 87 m² |
| Piętro | 5 |
| Liczba pokoi | 3 |




