3-pokojowy dom 61m2 + ogródek Bez Prowizji
Łódź, Łódzkie
Opis
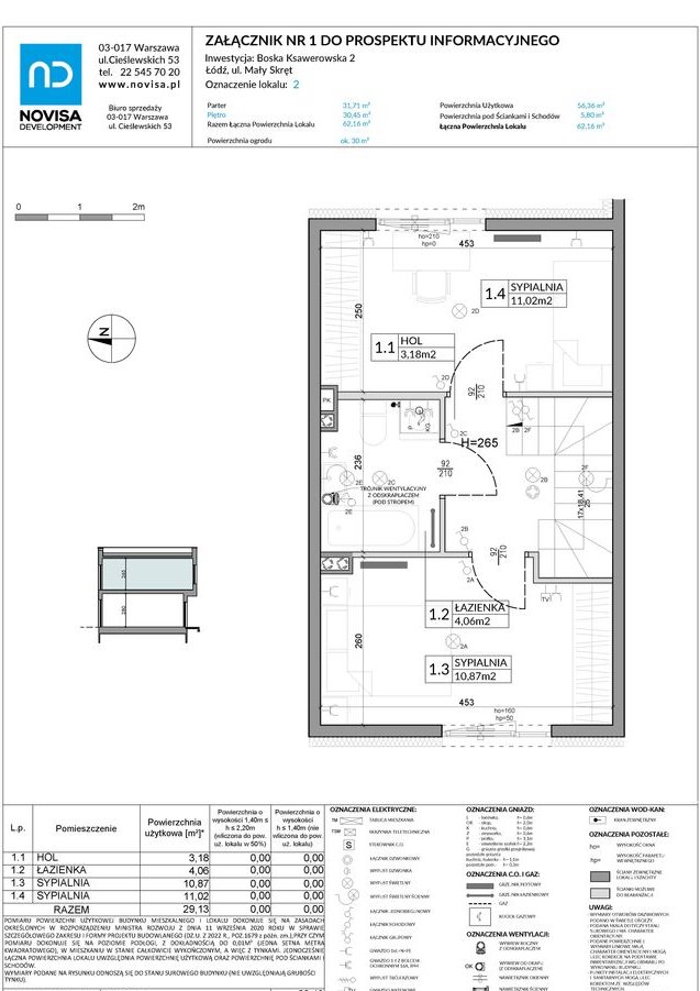
3-pokojowy dom numer 2 w Inwestycji Boska Ksawerowska 2 Dewelopera Novisa Development
Okna panoramiczne z widokiem na ogród
Ogródek przypisany do każdego domu
Ponadstandardowa wysokość pomieszczeń
Przystanek autobusowy Łódzka - Mały Skręt (6 minut pieszo)
Przystanek tramwajowy Łódzka - Mały Skręt (5 minut pieszo)
Centrum Handlowe Port Łódź, IKEA (3 minuty samochodem)
Stawy Stefańskiego, Park im. 1 Maja w Łodzi (6 minut rowerem)
Boska Ksawerowska 2 - poznaj inwestycję
Boska lokalizacja. Boski dom
Boska Ksawerowska 2 to druga odsłona cieszącego się popularnością osiedla w zielonej części Łodzi, stworzonego dla osób ceniących ciszę, przestrzeń i kontakt z naturą. To miejsce dla tych, którzy marzą o harmonijnym życiu w komfortowym domu z własnym ogródkiem, z dala od miejskiego zgiełku, ale z łatwym dostępem do udogodnień miasta.
Dom w zgodzie z naturą
W ramach inwestycji powstanie 60 nowoczesnych, dwukondygnacyjnych domów o powierzchni 62 lub 74 m², każdy z własnym ogródkiem. W centralnej części osiedla znajduje się naturalnie zachowana strefa zieleni, tworząca kameralną atmosferę i pozytywnie wpływająca na mikroklimat. Dodatkowym atutem jest bliskość leśnego zagajnika – to idealne miejsce na codzienny spacer czy relaks na świeżym powietrzu.
Nowoczesna architektura i funkcjonalność
Proste bryły z płaskim dachem oraz jasną elewacją nadają osiedlu elegancki, a jednocześnie lekki charakter. Wyrazista strefa wejściowa, grafitowe okna, drzwi i skrzynki na listy nadają całości nowoczesnego wyglądu. Wysokie partery (280 cm) i panoramiczne okna od strony ogrodów doskonale doświetlają wnętrza, naturalnie łącząc przestrzeń domu z otaczającą zielenią. Funkcjonalny układ pomieszczeń podzielony na strefy dzienną i prywatną, z garderobą i dwiema łazienkami w wybranych lokalach, gwarantuje komfort użytkowania na co dzień.
Wszystko w zasięgu ręki
Osiedle Boska Ksawerowska 2 to doskonała lokalizacja dla rodzin z dziećmi. W promieniu kilku kilometrów znajdują się żłobki, przedszkola oraz szkoły podstawowe. Dla aktywnych rodzin atutem jest bliskość parku trampolin (13 minut spacerem) oraz licznych terenów zielonych, takich jak las i stawy Stefańskiego z miejscami do grillowania i boiskiem do siatkówki.
Wygodna komunikacja i infrastruktura
Dojazd do centrum Łodzi jest prosty i szybki dzięki bliskości przystanków autobusowego i tramwajowego. Ponadto, główna trasa komunikacyjna pozwala na sprawny dojazd do centrum oraz południowo-zachodnich części Polski. Codzienne zakupy ułatwia pobliska galeria handlowa (4 minuty samochodem), gdzie znajdują się m.in. IKEA, Biedronka oraz inne popularne sklepy i restauracje. W okolicy znajdują się również poczta oraz punkty odbioru paczek.
Rodzinny Kredyt Mieszkaniowy
Skorzystaj z Rodzinnego Kredytu Mieszkaniowego i kup dom w inwestycji Boska Ksawerowska 2 z minimalnym wkładem własnym – już ok. 20-30 tys. zł. Jeśli posiadasz zdolność kredytową, brakujący wkład może zostać objęty gwarancją BKG.
To rozwiązanie szczególnie korzystne dla rodzin i osób planujących przyszłość – w ramach programu, po narodzinach kolejnego dziecka, możliwa jest spłata części kredytu przez państwo (tzw. spłata rodzinna), która może sięgnąć nawet 60 000 zł.
To oznacza realny start we własny, przestronny dom z ogrodem, bez konieczności angażowania dużych oszczędności na początku.
Chcesz sprawdzić, jak to wygląda w praktyce przy konkretnym domu? Zostaw kontakt – oddzwonimy i przeprowadzimy Cię przez cały proces.
Boska Ksawerowska 2 - lokalizacja
Górna, ul. Pabianicka
7,9 km do centrum
9 min. spacerem do przystanku autobusowego
9 min. spacerem do przystanku tramwajowego
dojazd do centrum: 19 min samochodem
Istotne punkty w okolicy inwestycjiPrzystanek autobusowy (580 m, 9 minut spacerem)
Przystanek tramwajowy (588 m, 9 minut spacerem)
Ogólne informacje
| Rodzaj | Na sprzedaż |
|---|---|
| Powierzchnia użytkowa | 61.95 m² |
| Liczba pokoi | 3 |




