Przestronny dom w stanie deweloperskim na zielonym, kameralnym osiedlu – Łódź,ul. GoryczkowaOferujemy na sprzedaż komfortowy, dwukondygnacyjny dom o...
- 6 Sypialnie
Przestronny dom w stanie deweloperskim na zielonym, kameralnym osiedlu – Łódź,ul. GoryczkowaOferujemy na sprzedaż komfortowy, dwukondygnacyjny dom o...
Osiedle Jugosłowiańska Park 3 to prestiżowe zamknięte osiedle domów jednorodzinnych parterowych, zlokalizowane w urokliwej okolicy w niedalekiej odleg...
5-pokojowy dom numer C.2.2 w Inwestycji Beskidzka Park Dewelopera HERITAGE INVEST PARKGaraż i miejsce postojowe w cenieOgrzewanie podłogoweLas Wiąc...
Na sprzedaż wyjątkowy, nowoczesny dom w zabudowie szeregowej, położony w malowniczej części Łódź – na terenie dzielnicy Widzew. Nieruchomość o całkowi...
Oferujemy na sprzedaż nieduży dom o powierzchni 58 m², usytuowany w Łodzi Górnej, przy ul. Chłodnikowej. Idealne miejsce dla rodziny oraz osób ceniący...
Zespół pałacowo-parkowy z 1876 r.wpisany do rejestru zabytków jako zespół pałacowy, nr rej.: 341/83 .Jego budowniczym był uczestnik powstania styczni...
Nowoczesny dom z oranżerią i dużą działką – Łódź, ul. Kąkolowa 90 | 250 m² + ogród 1600 m²Na sprzedaż wyjątkowy dom wolnostojący położony w zielonej...
Sprzedam nowy dom 112.13m2 w zabudowie szeregowej , bardzo kameralna inwestycja ponieważ są tylko trzy domy w zabudowie szeregowej .Dom składa się z p...
Czy szukasz fundamentów, które przetrwają pokolenia? Dom przy ulicy Platynowej to propozycja dla osób ceniących realną wartość. Solidna cegła z 1987 r...
Wyjątkowa rezydencja z historią w sercu ŁodziPrestiżowa lokalizacja | Ponadczasowa architektura | Reprezentacyjny charakterNa sprzedaż unikalna ni...
.Dzień pokazowy tylko 22 Marca !!!, zadzwoń i umów się na prezentację!Cena w tej ofercie jest podana losowo bez żadnych określonych kryteriów lub za...
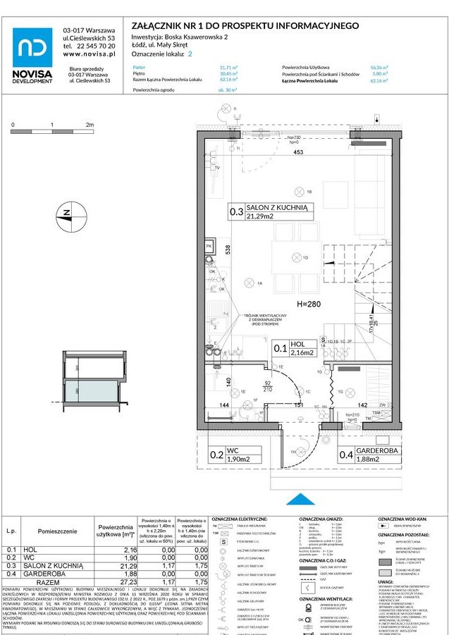
4-pokojowy dom numer 28 w Inwestycji Boska Ksawerowska 2 Dewelopera Novisa DevelopmentOkna panoramiczne z widokiem na ogródOgródek przypisany do każ...
4-pokojowy dom numer 1A w Inwestycji Garden Złotno Dewelopera Samson DomPompy ciepła, ogrzewanie podłogowePark im. Armii Łódź (12 minut spacerem)Pa...
NA SPRZEDAŻ GOTOWE DOMY NA NOWYM OSIEDLU W NOWOSOLNEJ!Dom o pow. 141,60 m2Pow. ogrodu 400 m2Osiedle to nowoczesna inwestycja łącząca komfort, fun...
4-pokojowy dom numer 17 w Inwestycji Boska Ksawerowska 2 Dewelopera Novisa DevelopmentOkna panoramiczne z widokiem na ogródOgródek przypisany do każ...