Łódź Smulsko dom w zab. szeregowej
Łódź, Łódzkie
Opis
Na sprzedaż jest dom w stanie surowym: Łódź Smulsko ul. Szermiercza.
Na działce posadowiony jest budynek jednorodzinny zabudowie szeregowej, dla którego wygasła decyzja pozwolenia na budowę w skutek zatrzymania budowy.
Lokalizacja:
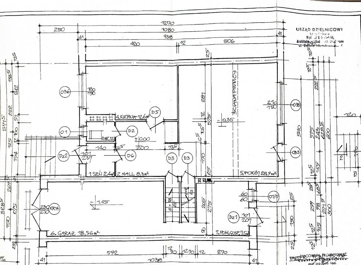
Oferuję do sprzedaży dom o powierzchni całkowitej 218 m2 z garażem w bryle budynku na działce o powierzchni 229 m², zlokalizowaną w Łódź Smulsko ul. Szermiercza, która położona jest w spokojnej, a jednocześnie dobrze skomunikowanej części miasta. Łatwy dojazd do centrum Łodzi czyni tę lokalizację bardzo atrakcyjną.
Parametry działki:
Powierzchnia: 229 m² (25m x 9m)
Kształt: prostokąt
Dojazd: droga asfaltową
Parametry domu:
Powierzchnia całkowita 218 m2
Piwnica:
Pomieszczenie gospodarcze - 41,5 m2
Parter:
Garaż - 18,56 m2
Pomieszczenie gospodarcze - 7,5 m2
Kuchnia - 12,6 m2
Salon - 28,9 m2
Wc - 1,5 m2
Piętro:
Pokój 1 - 15,2 m2
Pokoj 2 - 14 m2
Pokój 3 - 9,7 m2
Łazienka- 5,3 m2
Garderoba - 6,6 m2
Dom w stanie surowym otwartym, ściany murowane z cegły ceramicznej oraz pustaka ceramicznego.
Budynek dwukondygnacyjny (obniżenie część garażowej)
Media w drodze:
Energia elektryczna
Woda
Kanalizacja miejska
Sieć ciepłownicza
Atuty nieruchomości:
Atrakcyjna lokalizacja w Łodzi
Pełna własność z księgą wieczystą, brak obciążeń
Opis oferty wykonany na podstawie wykonanego Operatu szacunkowego nieruchomości.
Jeśli podoba Ci się lokalizacja i chcesz porozmawiać o CENIE zakupu tej nieruchomości to zapraszam do kontaktu telefonicznego.
Ogólne informacje
| Rodzaj | Na sprzedaż |
|---|---|
| Powierzchnia użytkowa | 218 m² |
| Liczba pokoi | 4 |




