KLIMATYCZNY APARTAMENT W CENTRUM OLIWY - GDAŃSK !LOKALIZACJA:Gdańska Oliwa to dzielnica dla osób ceniących prestiż, zieleń i wygodę codziennego życ...
- 4 Sypialnie
KLIMATYCZNY APARTAMENT W CENTRUM OLIWY - GDAŃSK !LOKALIZACJA:Gdańska Oliwa to dzielnica dla osób ceniących prestiż, zieleń i wygodę codziennego życ...
Apartamenty Ptasia 8 to kameralna inwestycja 31 mieszkań, stworzona z myślą o rodzinach poszukujących spokojnego i wygodnego miejsca do życia, w pobli...
Lokalizacja i dojazdInwestycja powstaje w spokojnej, zielonej części jednej z rozwijających się dzielnic Gdańska — bliskość centrum miasta łączy się...
Lokalizacja i dojazdInwestycja powstaje w spokojnej, zielonej części jednej z rozwijających się dzielnic Gdańska — bliskość centrum miasta łączy się...
Nowy dom z ogrodem w Gdańsku – bez PCC i bez prowizji!Zamień mieszkanie na własny dom z ogrodem w spokojnej, zielonej części Gdańska – Jasień.Inwe...
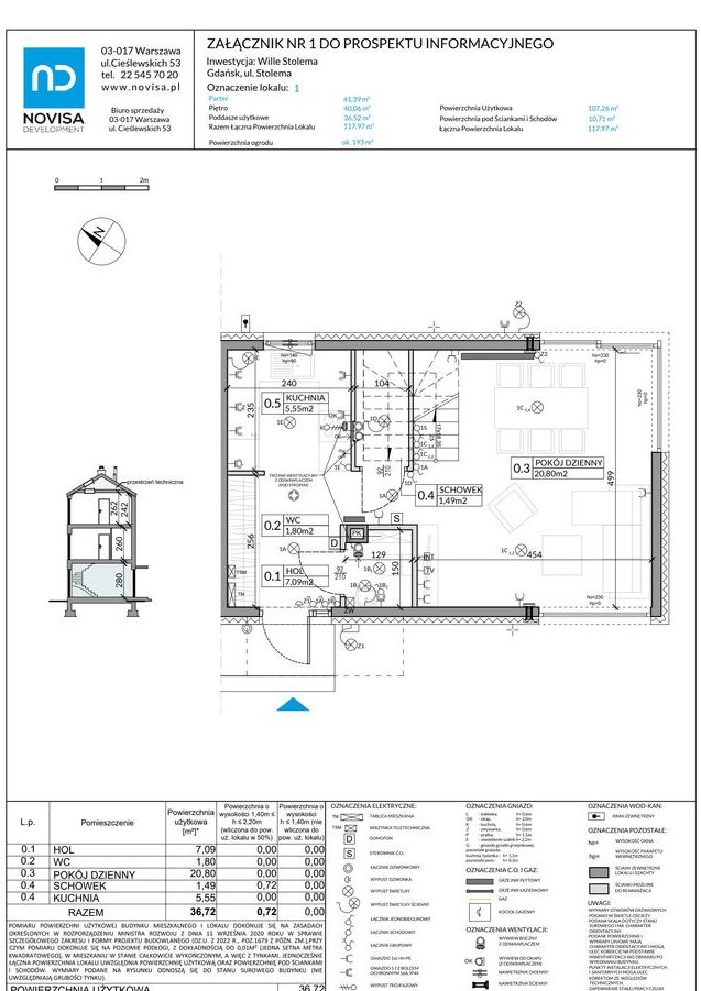
5-pokojowy dom numer 3A położony w inwestycji Villa Park Gdańsk Domyfunkcjonalny, ustawny, nowy lokal o powierzchni 117,27 m kw.inwestycja dla wymag...
Agencja WESTATE ma przyjemność zaprezentować atrakcyjny lokal inwestycyjny (niemieszkalny) zlokalizowany w jednej z najbardziej pożądanych części Gdań...
Słoneczne 3 pokoje na Żabiance - 15 min spacerem do morza!Na sprzedaż jasne i funkcjonalne mieszkanie o powierzchni 53,15 m², położone na 1. piętrze...
DOM WOLNOSTOJĄCY NA DUŻEJ DZIAŁCE W GDAŃSKU - KIEŁPINO GÓRNE !LOKALIZACJA:Dom zlokalizowany w lubianym i cenionym Kiełpinie Górnym. To podmiejska,...
Z przyjemnością przedstawiamy ofertę sprzedaży pokoju hotelowego (lokalu inwestycyjnego) w Hotelu Grano Life (dawniej Hotel Number One), należącego do...
APARTAMENT OD STRONY MOTŁAWY DO WŁASNEJ ARANŻACJIApartament w stanie deweloperskim - do własnej aranżacji | Prestiżowa inwestycja | Nadmotławie | Zi...
To mieszkanie idealne dla pary i dla singla - eleganckie, komfortowe 2 pokoje gotowe do wprowadzenia. Z salonu i sypialni jest wyjście na loggię z pię...
Narożne mieszkanie na drugim piętrze. Zadbany blok posiada dwie nowe windy.Nieruchomość o powierzchni 56,73m2. Gdańsk Suchanino, ul. Paganiniego 17W...
TRZYPOZIOMOWY ŚRODKOWY SEGMENT POŁOŻONY NA KAMERALNYM NOWOCZESNYM OSIEDLU USYTUOWANY 500M OD GRANICY TRÓJMIEJSKIEGO PARKU KRAJOBRAZOWEGOGaraż Na Trz...
Jeśli szukasz mieszkania blisko morza, które sprawdzi się zarówno do życia, jak i jako drugi dom- ta oferta na Jelitkowskim Dworze rozwiązuje oba scen...